Building plot in L'Escala Riells
L'Escala
REF. 5002
340 000 € Agency fees included
Features
- Downtown distance 1km
- Sea distance 1km
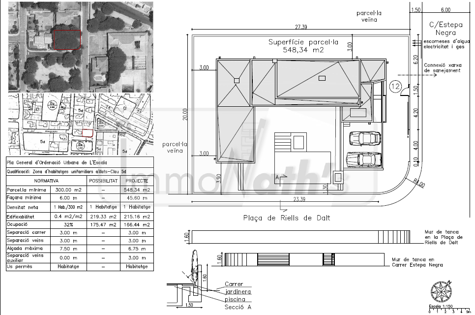
- Plot area 539 m²
- City L'Escala
Description
Are you looking for the perfect plot to build your dream home in L'Escala Riells?
We present this 539m² corner plot, located in a quiet neighbourhood of Riells.
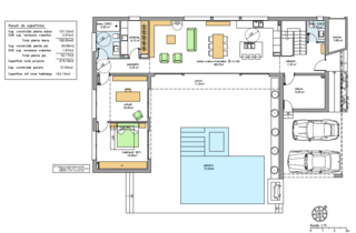
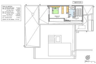
We are offering this plot with a project for a two-storey house with 215m² on the ground floor and 54m² on the first floor, comprising two bedrooms, an office, two bathrooms, a dressing room, a cellar, a living room with an open-plan kitchen, a laundry room, a garage for two cars and a swimming pool with a jacuzzi area.
This project has been approved by the town hall but needs to be updated.
Alternatively, you can create your own project.
It is located just 1 km from the centre and beach of L'Escala Riells.
340 000 € Agency fees included










